Doppelhaus IQ 130 SD DHH

Doppelhaus

Einfach mehr Platz zum Leben.

  • Ökologisches Bauen
  • Individuelles Bauen
  • Sicheres Bauen
  • Effizientes Bauen
  • Geprüftes Bauen
Doppelhaus

Grundriss

Grundriss

Erdgeschoss

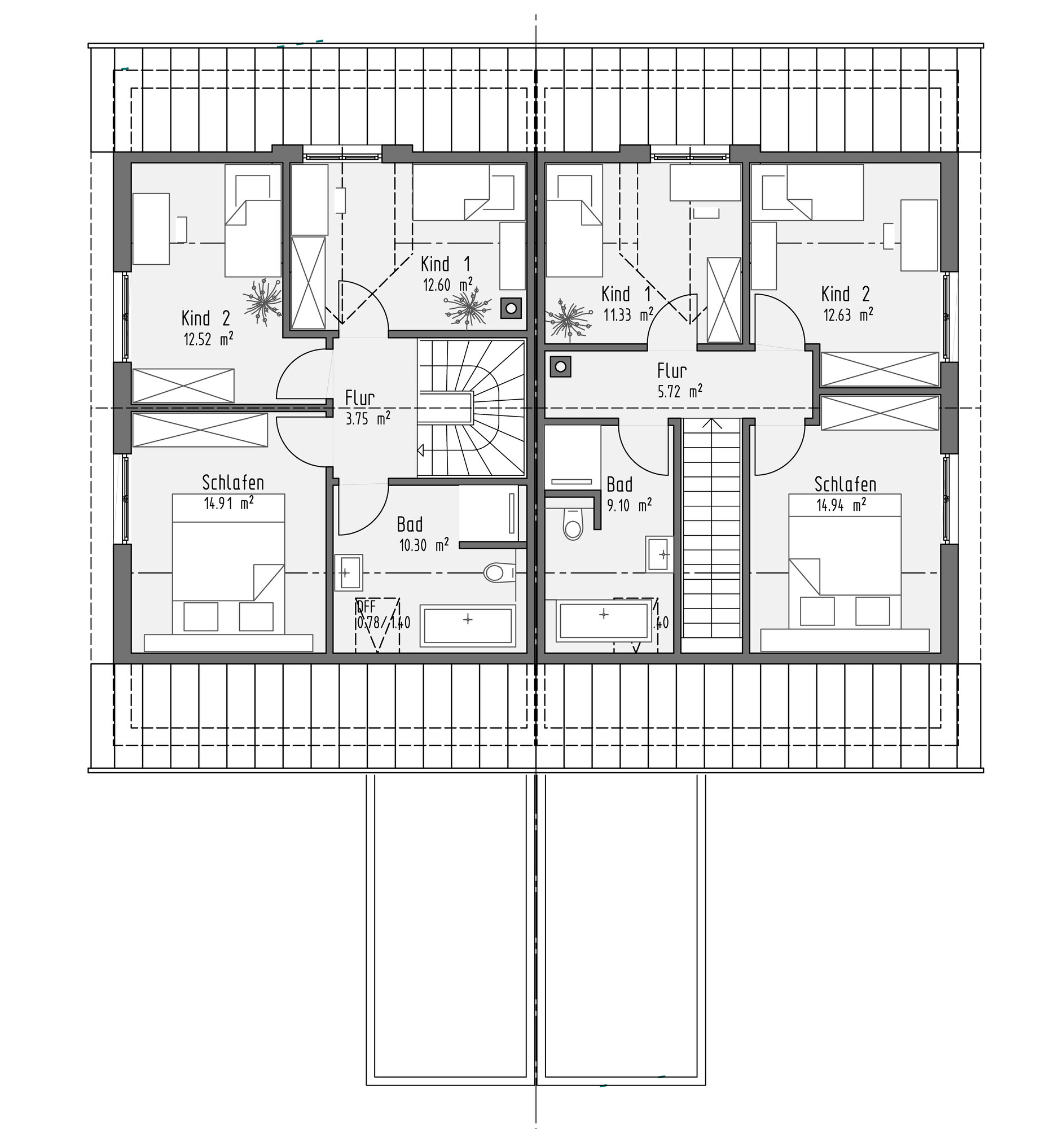
Grundriss

Dachgeschoss

Projektname:

Doppelhaus IQ 130 SD

ÜberbauteFläche:

Doppelhaus IQ 130 SD

Wohnfläche:

Haus 1 - 120 m²
Haus 2 – 121 m²

Grundfläche:

Haus 1 - 131 m²
Haus 2 - 129 m²

Geschosse:

1

Dachform:

Satteldach

Dachneigung:

35 °

Icon Mail

info@fertighaus-iq.de

Icon Telefon

+49 (0) 7942 -52 100 20